Editorial

Will My Furniture Really Fit? The Hidden Truth Behind “Spacious” House Plans

Quick summary

Will your furniture really fit your house plan? Learn how misleading layouts, reduced furniture, and missing circulation space can ruin comfort and how to avo

Author

Written by MyFreeHousePlans Team

Expert architects and designers sharing insights on house planning, construction, and home design trends.

Will My Furniture Really Fit? The Hidden Truth Behind “Spacious” House Plans

 

Will My Furniture Really Fit? The Critical Question Every Smart Home Buyer Must Ask

At first glance, the floor plan looks absolutely perfect. The living room appears wide and welcoming. The master bedroom looks calm and balanced. On paper, the sofa fits beautifully, and the bed seems to float comfortably in the center of the room.

And yet, months later, after the cement has dried and the paint is on the walls, many new homeowners find themselves standing in their new home asking the same painful question:

"Why does my house feel so much smaller than the plan?"

The answer is almost always the same, and it comes down to how the industry presents space versus how we actually inhabit it.

1. The Great Visual Deception: The Illusion of Space

Most house plans sold online or presented by developers are designed with one primary goal: to look attractive. They are marketing tools, not necessarily reflections of everyday reality.

The furniture drawn on these sales plans is often subject to "scale manipulation":

  • Reduced Sizes: Beds and sofas are often drawn at 80% of their actual size to make the room appear larger.
  • Simplified Shapes: Complex furniture is rendered as simple blocks, ignoring the bulk of cushions or frames.
  • Symbolic Layouts: The layout is symbolic rather than realistic.

The result is a convincing visual illusion: the plan feels spacious and airy, but the constructed house feels tight and cluttered. This isn't always malicious—it is a presentation technique—but it can be disastrous for the homeowner who doesn't look closer.

2. The Golden Rule: Demand "Finished Interior Dimensions"

Before buying a stock plan or breaking ground on a custom build, there is one non-negotiable rule you must follow: Always request the finished interior dimensions.

Many plans show dimensions based on the masonry or rough framing. However, "Finished Dimensions" represent the real usable space after the construction is complete:

  • After drywall installation.
  • After plaster and baseboards.
  • After wall coatings and tiles.

Why does this matter?

Wall finishes and insulation can reduce a room’s width by 8 to 15 cm on each side. In a large hall, this is negligible. In a small bedroom or bathroom, that difference can completely prevent a standard bed or vanity from fitting. A plan without finished interior dimensions is an incomplete map.

3. Real Furniture vs. Paper Drawings

Never trust the furniture icons shown on a blueprint. Paper accepts any drawing, but reality has hard limits. To protect yourself, you must compare the room dimensions against real-world furniture standards.

Use these professional references to check if your life will actually fit in the room:

  • Standard Double Bed: 160 × 200 cm (European) or 54" x 75" (Full)
  • Queen/King Size Bed: 180 × 200 cm or larger.
  • 3-Seater Sofa: 200–230 cm width.
  • Corner/Sectional Sofa: 250–300 cm.
  • Wardrobe Depth: 60 cm (standard for hangers).
  • Dining Table (6 people): 160–180 cm length.

If a room on the plan barely fits these items, it will not function in real life. If the drawing shows a bed with tiny nightstands, check the measurements—you might not have room for nightstands at all.

4. The Most Forgotten Element: Circulation Space

This is the hidden detail that destroys comfort when ignored. A piece of furniture that physically "fits" into a room is useless if you cannot move around it naturally. Space is not just for objects; it is for people.

Minimum Professional Circulation Standards:

To avoid a cramped feeling, you must account for "negative space" (the empty floor):

  • Around a bed: 60 cm minimum (to make the bed and walk past).
  • In front of wardrobes: 80–90 cm (to crouch down and open drawers).
  • Corridors: 90 cm width for comfortable two-way traffic.
  • Around dining tables: 100–120 cm (to pull out a chair without hitting the wall).
  • Coffee tables: 60 cm between the sofa and the table.

Without these clearances, daily life becomes a series of small frustrations—bumping into corners, shuffling sideways to pass, and feeling hemmed in.

5. A Real Example: The "Bedroom That Lies"

Let's look at a common scenario. A bedroom measuring 3.00 × 3.20 m looks perfectly acceptable on a plan. It seems like a standard room.

But once you introduce reality:

  1. Place a 160 × 200 cm bed.
  2. Add 60 cm of circulation on both sides.
  3. Add the swing radius of a door or the depth of a wardrobe.

Suddenly, the room is full. You cannot open the closet fully without hitting the bed. You have to squeeze against the wall to get to the window.

The Professional Recommendation:

For a truly comfortable master bedroom with a standard double bed and a wardrobe, professionals recommend a minimum of 3.40 × 3.50 m. Small differences on paper (20-30cm) become major quality-of-life issues in reality.

6. Why Is This Mistake So Common?

Why do so many plans fail this test?

  • Marketing Optimization: Plans are drawn to sell the "idea" of a home.
  • Symbolism: Furniture is treated as a symbol, not a physical object.
  • Buyer Focus: Buyers focus on total square footage/meters rather than room usability.
  • Lack of Education: Circulation rules are rarely explained to clients.

This is optimistic design. But as the saying goes: "Optimism does not move walls after construction."

7. How to Protect Yourself Before Building

You can avoid this trap. Before you sign off on a design, use this checklist:

  •  Ask for finished dimensions: Ignore the rough masonry lines.
  •  List your actual furniture: Measure what you own or what you plan to buy.
  •  Write down exact sizes: Do not guess.
  •  Add the circulation math: Add +60cm to every side of the bed and table.
  • Test every room: Mentally walk through the daily routine in that space.
  •  Reject the tight squeeze: If it looks tight on paper, it will be suffocating in reality.

Pro Tip: Test Furniture at Scale

Do what architects and engineers do. Print the plan to scale (or use a digital tool). Cut out pieces of paper representing your real furniture at the exact same scale. Place them on the plan. Check the walking paths. Check the door swings. This simple afternoon activity can save you years of discomfort and thousands of dollars in renovation costs.

Conclusion: A Plan is Not Space, It Is a Promise

A beautiful drawing is not a comfortable home. Only real dimensions, real furniture, and real circulation create a house that feels good to live in.

A good house plan is not the one that looks the biggest on the brochure. It is the one that works, flows, and fits your life every single day.

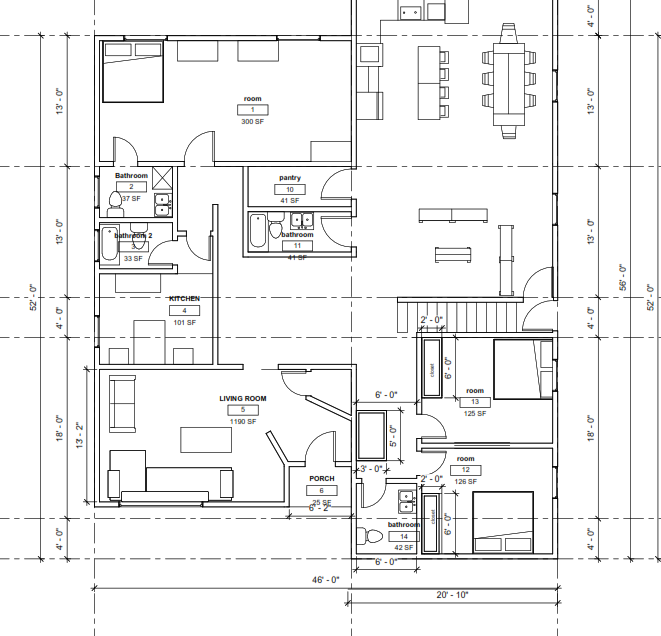
Featured Plan

Compact Single-Bedroom House with Covered Terrace

This compact single-story house plan is designed to deliver comfortable everyday living within a well-organized and efficient footprint. All spaces are arranged on Level 0, ensuring ease of movement and accessibility while maintaining a clear separation between living, sleeping, and service areas...

MFP-011 Free
Compact Single-Bedroom House with Covered Terrace

Stay Updated

Get the latest house plans, design tips, and construction insights delivered to your inbox.

Recommended Reading

The House That Ate My Wallet: Hidden Costs of Building a Home

Are you building a house and going over budget? You are not alone. Discover the hidden costs of construction

Read article Browse blog